LCM series miniature safety grating is a new type of antiradiation product developed with foreign advanced technology.
Taking into account the economy and safety, the product has passed the European CE certification (EN1496-1/2) safety level four. It has strong stability and can completely replace the corresponding imported products, such as: GL-S series, SAS series, PJV series, C4C series, etc. It has been widely used in assembly lines, injection molding machines, hydraulic presses, and other automated special equipment. This grating has the following characteristics:

◆Using optical communication, can be separated power supply, convenient wiring
◆Using more small and exquisite SMD devices and the latest foreign technology to achieve a shorter invalid length of the blind zone
◆Small volume, cross-sectional size 25*28mm, 15*30mm, 30*16mm, saving installation space
◆Using modular design, the product adapts to a wide environment and has strong anti-interference ability
LCM series micro grating product structure model description

LCM:Miniature grating
0326:Overall dimension height
N(P):Output mode N: NPN level output P: PNP level output
D :Section size D: 25*28 S: 30*16 None: 15*3
10:Pitch 10mm 20mm 25mm 40mm
R: E: Transmitting unit R: Receiving unit None: a pair of light
□□: Optional distance 10-1 meters 20-2 meters
X : L:IP67(Waterproof and oil proof)
Please add SA after the specific model,SA means the latest model series





20 series (optical axis spacing: 20mm, resolution: 25mm) and installation dimensions

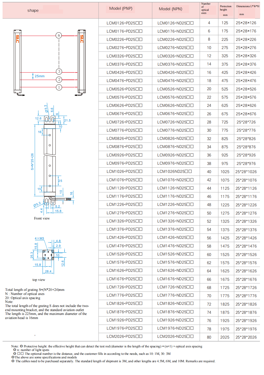
25 series (optical axis spacing: 25mm, resolution: 30mm) and installation dimensions



